도어벨 교체한 이력을 총 4편으로 나눠서 기록함. (하드웨어 설치하기 편, Home assistant에 연동하기 편, 애플 홈에 보안카메라로 설정하기 편, 초인종 보강판 설치하기)
초인종 보강판을 사용하는 이유는 두 가지였다. 첫 번째는 벽면에 설치된 초인종 고정대와 새로 설치할 초인종의 나사 구멍 간격이 맞지 않는 경우이다. 두 번째는 랜선이 나오는 벽의 구멍이 너무 커서 초인종을 잘 고정하더라도 구멍이 그대로 노출되어 이를 가리기 위해 사용하는 경우이다.
처음에는 코맥스 초인종을 사용하다가, IoT에 관심이 생기면서 아카라 G4 도어벨 카메라를 약 1년간 사용했다. 그리고 최근에는 유니파이 도어벨 G4로 교체했다.
초기 설치된 코맥스 초인종은 나사 구멍 간격이 코맥스 규격으로 되어 있어, 아카라 도어벨과는 맞지 않았다. 그래서 교체 당시에는 어쩔 수 없이 네이버에서 구매한 코맥스 초인종 보강판을 먼저 설치한 후, 그 위에 아카라 도어벨을 장착했다.
하지만 그때 사용한 보강판은 마감 상태가 별로 좋지 않았다. 보강판의 재질이 저렴한 플라스틱이었고, 크기 또한 아카라 도어벨 본체에 비해 지나치게 커서 멀리서 보면 초인종 본체보다 보강판이 더 눈에 띄는 상황이었다. 설치 후에도 만족스럽지 않았던 이유가 바로 그것이었다.

이번에 유니파이 도어벨로 교체하면서, 조금 더 비용이 들더라도 보강판을 주문 제작하기로 마음먹었다. 초인종 보강판을 벽에 고정하기 위해 필요한 나사 구멍 간격은 기존 코맥스 규격 초인종 보강판의 나사 간격을 줄자로 측정해 확인했다. 또한, 유니파이 도어벨의 뒤판을 보강판에 고정해야 했기 때문에, 유니파이 도어벨 뒤판의 나사 구멍 간격도 꼼꼼히 측정해 도면에 반영했다.
보강판 크기는 벽의 구멍을 간신히 가릴 정도로 최소화해 도어벨에 가려져 보이지 않도록 설계했다. 색상은 유니파이 도어벨의 표면 재질과 어울리도록 유광 블랙으로 도색해 깔끔한 마감이 가능하도록 했다.
철판컷팅 : 스틸-로
[스틸-로] 금속레이저가공 절곡 판금 주문제작
smartstore.naver.com
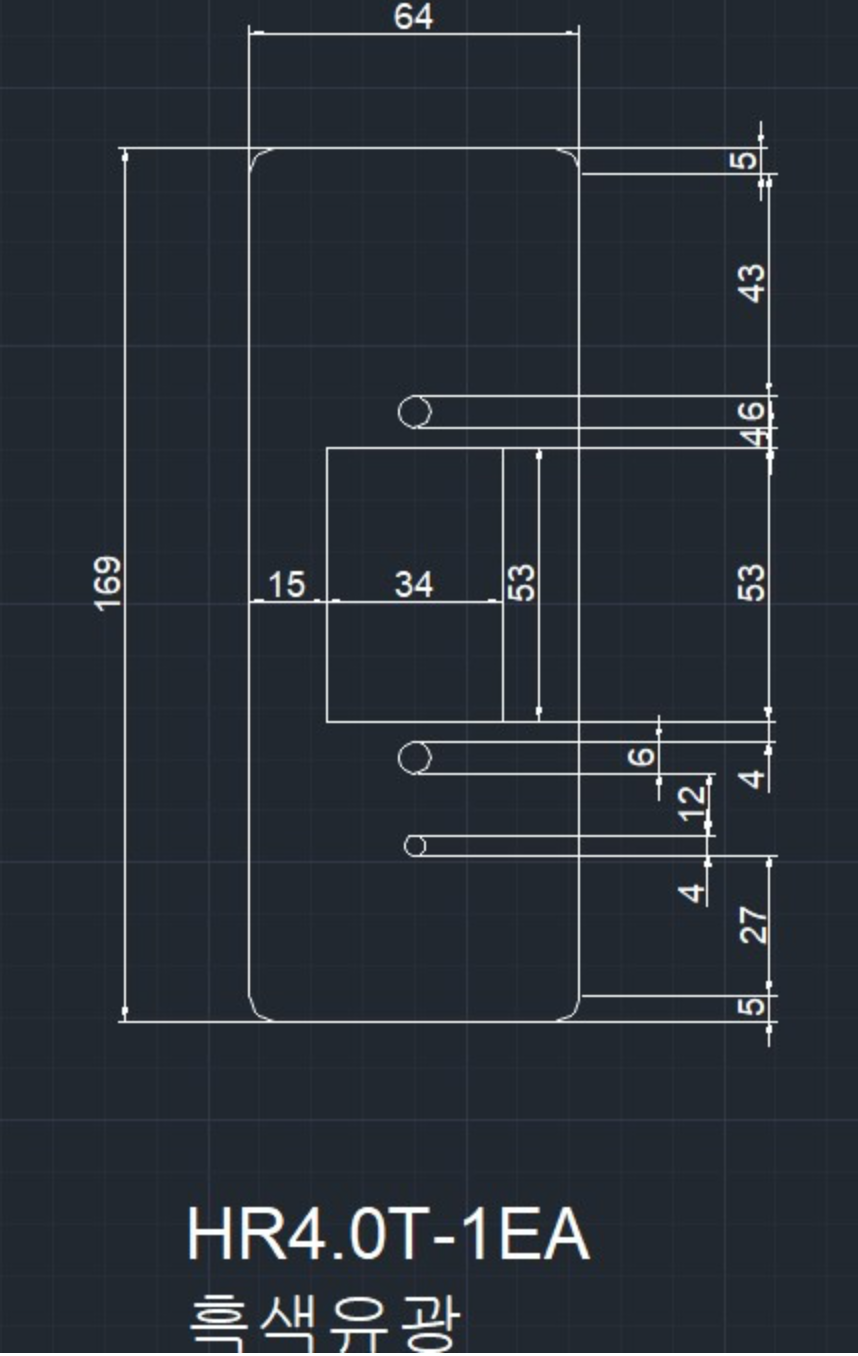
아래는 제작업체를 통해 제작한 초인종 보강판의 실물 이미지이다. 가운데 뚫린 사각 구멍은 랜선이 나오는 곳이고, 3개의 원형 구멍은 나사 구멍이다. 구멍 중에서 위에서 첫 번째, 두 번째는 보강판과 유니파이 도어벨을 결착하는 나사 구멍이고, 첫 번째와 세 번째는 보강판을 벽의 코맥스 규격의 고정대와 결착하는 나사 구멍이다. 결국 첫 번째 구멍은 유니파이 도어벨과 보강판과 벽의 고정대를 동시에 나사로 고정해야 한다.




아래는 이번에 제작한 보강판의 도면인데 추후에 필요하면 한번 더 제작을 하려고 한다.

------------------------------------------------
[스마트홈 구축기 39] 현관 도어벨 교체하기(아카라 도어벨 G4 -> 유니파이 도어벨 G4)
도어벨 교체한 이력을 총 4편으로 나눠서 기록함. (하드웨어 설치하기 편, Home assistant에 연동하기 편, 애플 홈에 보안카메라로 설정하기 편, 초인종 보강판 설치하기) 스마트홈을 구축하면서 가
wendysm.tistory.com
#2 Home assistant에 유니파이 카메라 연동하기
[스마트홈 구축기 40] 유니파이 카메라 G4 Doorbell을 Home assistant에 연결하기
도어벨 교체한 이력을 총 3편으로 나눠서 기록함. (하드웨어 설치하기 편, Home assistant에 연동하기 편, 애플 홈에 보안카메라로 설정하기 편) 1편에서는 기존에 사용하던 아카라 도어벨 G4를 떼어
wendysm.tistory.com
[스마트홈 구축기 41] 유니파이 카메라를 애플 홈에 연동하기
도어벨 교체한 이력을 총 3편으로 나눠서 기록함. (하드웨어 설치하기 편, Home assistant에 연동하기 편, 애플 홈에 보안카메라로 설정하기 편) 1편에서는 기존에 사용하던 아카라 도어벨 G4를 떼어
wendysm.tistory.com
'스마트홈 구축기' 카테고리의 다른 글
| [스마트홈 구축기 44] 재실 센서 교체 후기(아카라 FP1 -> Everything Presence One) (1) | 2024.12.25 |
|---|---|
| [스마트홈 구축기 43] 유니파이 POE 스위치 추가하여 홈네트워크 구조도 변경한 결과 (2) | 2024.11.30 |
| [스마트홈 구축기 41] 유니파이 카메라를 애플 홈에 연동하기 (1) | 2024.11.19 |
| [스마트홈 구축기 40] 유니파이 카메라 G4 Doorbell을 Home assistant에 연결하기 (1) | 2024.11.18 |
| [스마트홈 구축기 39] 현관 도어벨 교체하기(아카라 도어벨 G4 -> 유니파이 도어벨 G4) (2) | 2024.11.17 |